Používame cookies

Súbory cookie a ďalšie technológie sledovania používame na zlepšenie vášho zážitku z prehliadania našich webových stránok, na to, aby sme vám zobrazovali prispôsobený obsah a cielené reklamy, na analýzu návštevnosti našich webových stránok a na pochopenie toho, odkiaľ naši návštevníci prichádzajú. Viac info

PRENÁJOM / kancelárske a obchodné priestory 280 m2 / ul. Bardejovská, Prešov - Šarišské lúky

2 300 €/mesiac
+ energie
ULICA: Bardejovská
DRUH: Priestory
TYP: Prenájom
PLOCHA: 280 m2

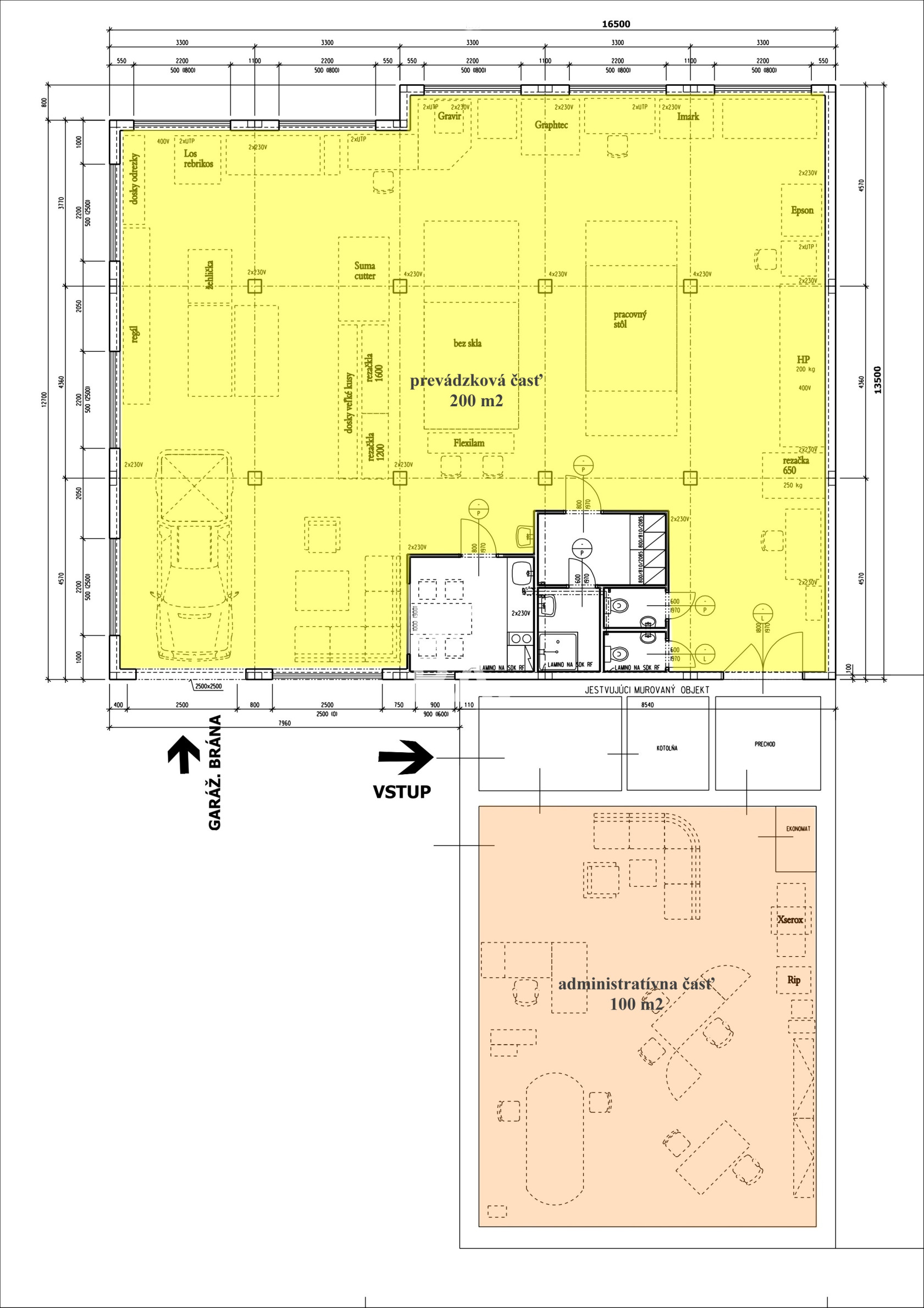
POPIS NEHNUTEĽNOSTI

Hľadáte ideálne priestory pre váš biznis v Prešove?

Realitná kancelária MYRABIZ vám ponúka na prenájom obchodné a kancelárske priestory  v priemyselnej časti mesta Prešov - Šarišské lúky, na ulici Bardejovská pri bývalom areáli Kronospan, oproti LIDL. 

Priestory sú situované v priemyselnej zóne s výbornou dostupnosťou a parkovaním.

Popis priestorov:

Rozloha: 280 m2

 

Vlastné meranie elektriny

podlahové kúrenie posilnené 12,885 kW fotovoltaickými panelmi

2x 7 kW klimatizácia

1x elektrický kotol (5 radiátorov)

6 parkovacích miest + garážová brána s možnosťou parkovať vnútri (výška 3 metre)

Reklamná plocha na budove +2x vlajka pred budovou

2x okná od cesty na reklamu

V cene nájmu:

Vodné a stočné

Platné revízie 

Protipožiarna ochrana, hasiace prístroje

Poistka na budovu

Nájomné:

2300 € bez DPH mesačne + elektrina

Ďalšie informácie:

Priestory sú vhodné pre rôzne typy prevádzok, ako napríklad výroba, sklad, showroom, prevádzky ktoré si vyžadujú stabilnú teplotu v interiéry napr. sklad na lieky, potraviny, výživové doplnky a pod. Priestory sú voľné od 1.5.2026.

Kontakt: Ing. Martin Pončák, tel. 0903 433 337, martin.poncak@myrapoint.sk

 

ZOBRAZIŤ VIAC

VLASTNOSTI NEHNUTEĽNOSTI

Status:
aktívne
Vlastníctvo:
osobné
Úžitková plocha:
300 m2
Podlahová plocha:
300 m2
Stav:
úplne prerobený
Typ budovy:
predvyrobené alebo montované
Typ výbavy:
kompletne vybavený
Garáž:
áno
Dielňa:
áno
Rok výstavby:
2020
Rok poslednej rekonštrukcie:
2020
Pozícia:
Prízemie
Celková plocha:
280 m2
Počet garáží:
1
Orientácia:
východ
Inžinierske siete:
áno

LIFESTYLE INDEX

Inštitúcie

  • Škola
    Škola
    Škola

Služby

  • Nákupné centrum
    Nákupné centrum
    Nákupné centrum
  • Autobusy/Električky
    Autobusy Električky
    Autobusy/Električky
  • Reštaurácia
    Reštaurácia
    Reštaurácia

Kultúra

Relax

  • Parkovisko
    Parkovisko
    Parkovisko