Používame cookies

Súbory cookie a ďalšie technológie sledovania používame na zlepšenie vášho zážitku z prehliadania našich webových stránok, na to, aby sme vám zobrazovali prispôsobený obsah a cielené reklamy, na analýzu návštevnosti našich webových stránok a na pochopenie toho, odkiaľ naši návštevníci prichádzajú. Viac info

Byty nad Pasážou – nové mezonetové byty v centre / Lipany

109 900 €
V popise
ULICA: Sládkovičova
OKRES: Sabinov
DRUH: Byty
TYP: Predaj
PLOCHA: m2

POPIS NEHNUTEĽNOSTI

Predstavujeme vám Byty nad Pasážou, nový rezidenčný projekt vytvorený formou nadstavby polyfunkčného objektu na ulici Sládkovičova, priamo v centre mesta Lipany. Projekt prináša 6 moderných mezonetových bytov s premysleným dispozičným riešením, výborným presvetlením a praktickými úžitkovými vlastnosťami.

Byty sa predávajú v stave holobyt, čo umožňuje novému majiteľovi dokončiť si interiér presne podľa vlastného vkusu. Po dohode môžeme zabezpečiť aj kompletné dokončenie.

Čo je zahrnuté v cene bytov ?

Súčasťou štandardu, ktorý je už zahrnutý v cene, je:

  • zasklenie terás/patií (cca 80 % prekrytie),
  • dlažby v exteriérovej časti patio,
  • protipožiarne vstupné dvere,
  • kompletné elektroinštalácie, vrátane zásuviek a vypínačov,
  • 3-komorové okná,
  • kompletne dokončené spoločné priestory – kočikáreň, pivničné kopky,
  • prekryté parkovisko pre bicykle,
  • teplovodné podlahové vykurovanie,
  • klimatizácia v každom byte (okrem bytu č. 4 a 6).

Parkovanie

Ku každému bytu je možnosť dokúpiť 1 vonkajšie parkovacie státie v cene 3 000 € s DPH.
V projekte bude celkovo 8–9 vonkajších parkovacích miest.

Hlavné benefity projektu

  • 6 nových mezonetových bytov
  • moderné, premyslené dispozície
  • veľké presklenia a svetlé interiéry
  • 4 byty so súkromným patiom (9–20 m²)
  • podlahové vykurovanie
  • klimatizácia v každom byte
  • kompletné služby v pešej dostupnosti
  • centrum mesta – všetko do 1 minúty
  • nízke prevádzkové náklady
  • bezproblémové parkovanie v okolí

Lokalita

Projekt sa nachádza na adrese Sládkovičova, Lipany, len pár krokov od obchodov, služieb, školy, zdravotného strediska či MHD.
Ideálna voľba pre tých, ktorí chcú bývať priamo v centre diania, bez potreby každodenného dochádzania autom.

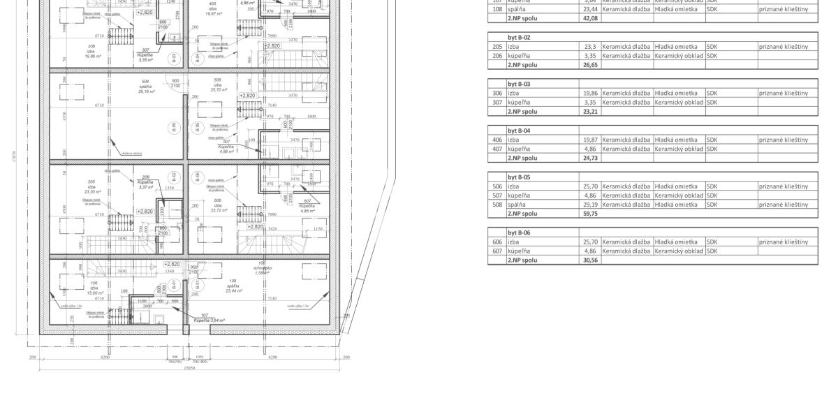
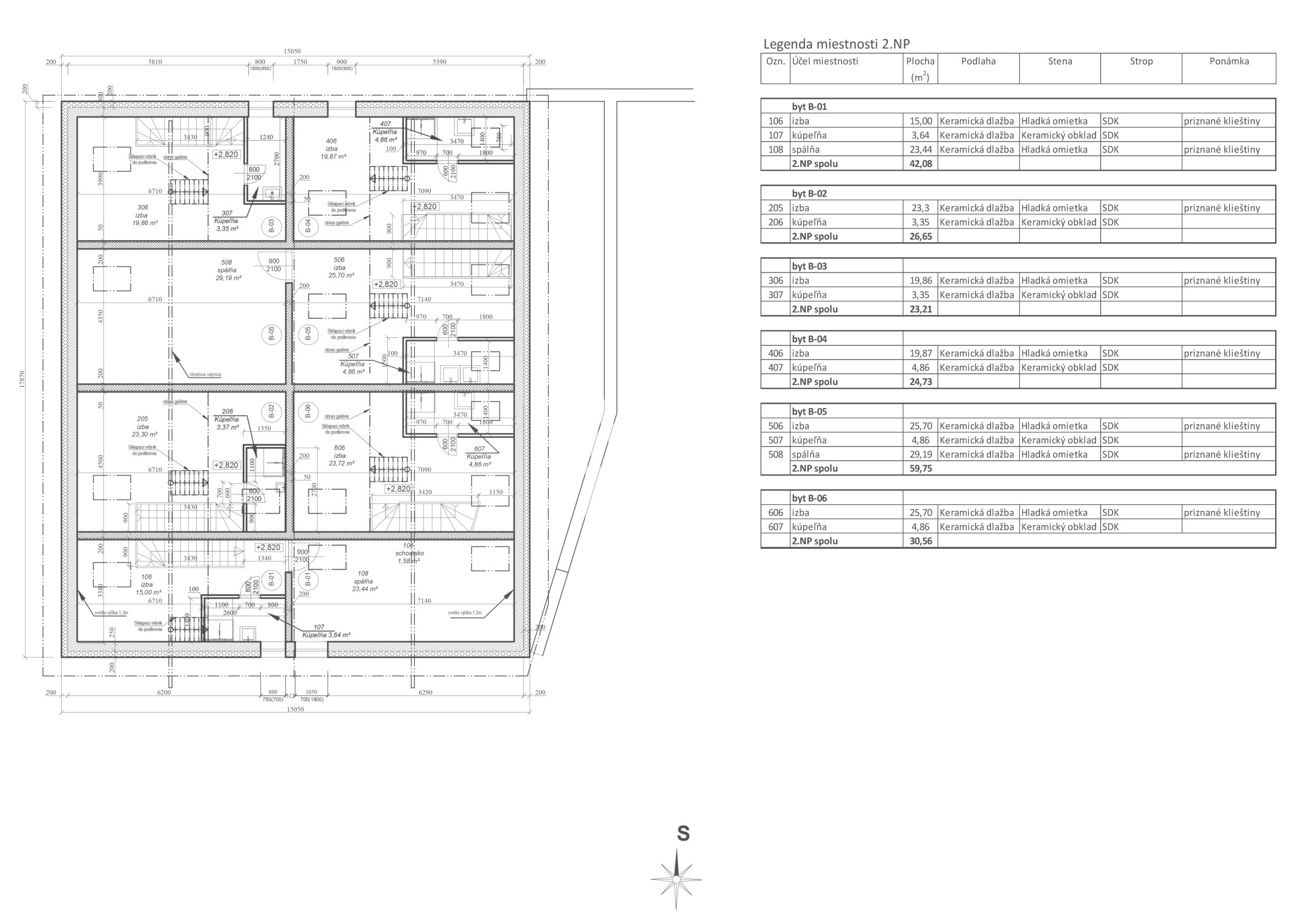
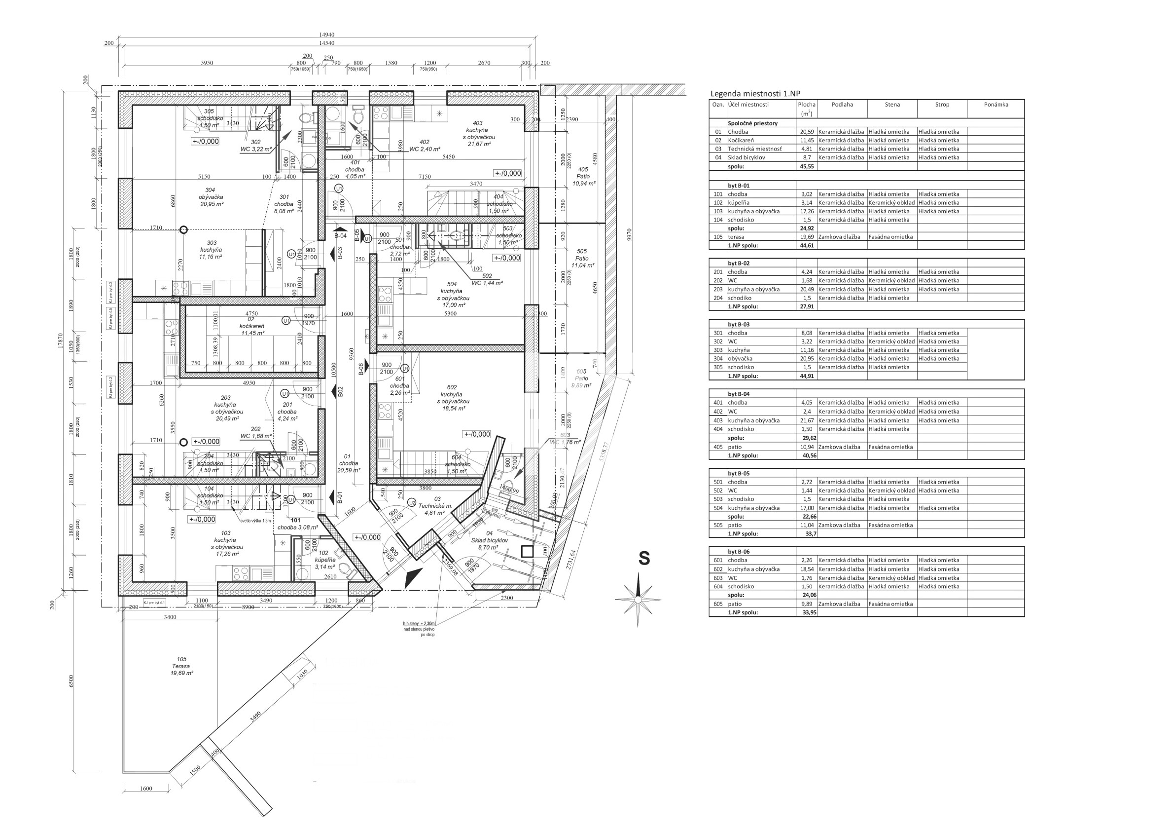
Dostupné byty a ceny

B-01 – mezonet (3+kk) s klimatizáciou (REZERVOVANÝ !!)

NP: 24,92 m²
NP: 42,08 m²
Patio: 19,69 m²

Celková výmera: 67,00 m² (+ patio 19,69 m² nezastrešené)

možnosť využitia podkrovia 16 m²

Cena: 141 000 €

 

B-02 – mezonet (2+kk) s klimatizáciou    (REZERVOVANÝ !!)

NP: 27,91 m²
NP: 26,65 m²

Celková výmera: 54,56 m²

možnosť využitia podkrovia 9 m²

Cena: 109 900 €

 

B-03 mezonet (2+kk)  s klimatizáciou (REZERVOVANÝ !!)

NP: 44,91 m²

NP: 23,21 m²

Celková výmera: 68,12 m²

možnosť využitia podkrovia 9 m²

Cena: 129 500 €

 

B-04 – mezonet (2+kk) bez klimatizácie (REZERVOVANÝ !!)

NP: 29,62 m²
NP: 24,73 m²
Patio: 10,04 m²

Celková výmera: 51,78 m² (+ patio 10,04 m²)

možnosť využitia podkrovia 9 m²

Cena: 116 900 €

 

B-05 – mezonet (3+kk)  s klimatizáciou 

NP: 22,66 m²
NP: 59,75 m²
Patio: 11,04 m²

Celková výmera: 81,72 m² (+ patio 11,04 m²)

možnosť využitia podkrovia 18 m²

Cena: 165 750 €

 

B-06 – mezonet (2+kk) bez klimatizácie

NP: 24,06 m²
NP: 30,56 m²
Patio: 9,89 m²

Celková výmera: 53,72 m² (+ patio 9,89 m²)

možnosť využitia podkrovia 9 m²

Cena: 121 900 €

Na vyžiadanie poskytneme:

  • pôdorysy jednotlivých bytov,
  • vizualizácie (súčasťou fotodokumentácie inzerátu),
  • kompletnú technickú dokumentáciu.

Byty sú vhodné pre mladé páry, jednotlivcov aj menšie rodiny, ktoré hľadajú moderné mestské bývanie s praktickou dvojpodlažnou dispozíciou.

Kontakt

V prípade záujmu o obhliadku alebo viac informácií nás neváhajte kontaktovať.

Ing. Martin Pončák – MYRA
+421 903 433 337
martin.poncak@myrapoint.sk
www.myrapoint.sk
Tkáčska 4, Prešov

ZOBRAZIŤ VIAC

VLASTNOSTI NEHNUTEĽNOSTI

Status:
aktívne
Vlastníctvo:
osobné
Úžitková plocha:
67 m2
Zastavaná plocha:
67 m2
Stav:
novostavba
Počet izieb:
2
Energetický certifikát:
A
Typ budovy:
tehla
Typ výbavy:
nevybavený
Terasa:
áno
Verejné vonkajšie parkovanie:
áno
Rok výstavby:
2025
Pozícia:
Prízemie
Počet vonkajších parkovacích miest:
8
Orientácia:
juhovýchod

LIFESTYLE INDEX

Inštitúcie

  • Miestny úrad
    Miestny úrad
    Miestny úrad
  • Banka
    Banka
    Banka
  • Školka
    Školka
    Školka

Služby

  • Nákupné centrum
    Nákupné centrum
    Nákupné centrum
  • Reštaurácia
    Reštaurácia
    Reštaurácia
  • Kúpalisko
    Kúpalisko
    Kúpalisko

Kultúra

Relax

  • Parky/záhrady
    Parky záhrady
    Parky/záhrady
  • Parkovisko
    Parkovisko
    Parkovisko

Zoznam objektov

Číslo
Izby
Obytná plocha
Poschodie
Celková plocha
Stav
Cena
 

INFORMATÍVNA ÚVEROVÁ KALKULAČKA

Virtuálna prehliadka

Video