POPIS NEHNUTEĽNOSTI
MYRA realitné centrum ponúka na predaj novostavbu rodinného domu v širšom centre Prešova na ul. Kvetnej.
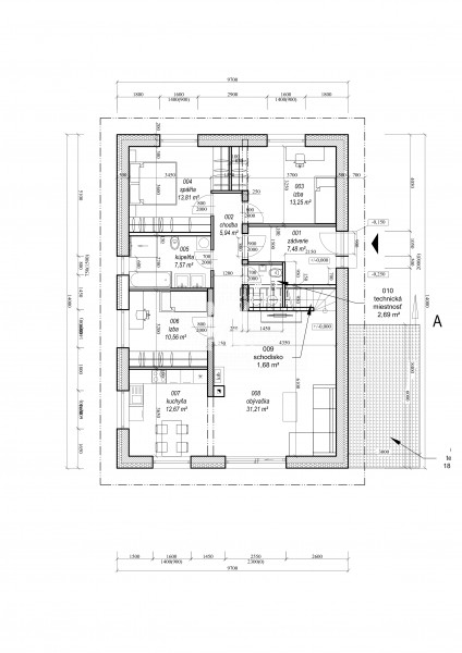
Tento moderný bungalov s podkrovím poskytuje priestranných 7 obytných miestností. Na prízemí nájdete 103 m² podlahovej plochy a priestranné podkrovie s výmerou 100 m², ktoré je prepojené štýlovým oceľovým schodiskom s drevenými nástupnicami.
Dom je postavený z kvalitného YTONG materiálu v energetickej triede A0 s izolačnými prvkami, ktoré zabezpečujú vysokú energetickú efektivitu. Obsahuje podlahové vykurovanie napojené na tepelné čerpadlo vzduch-voda a veľkorysý zásobník na ohrev vody s objemom 290 l. V obývačke je predpríprava na inštaláciu krbu, ktorá zahŕňa zabudovaný komín.
Na prízemí sa nachádzajú tri nepriechodné izby, kuchyňa s obývačkou, technická miestnosť s WC a kúpeľňa. Podkrovie ponúka tri ďalšie izby a kúpeľňu, ideálne pre rodinný komfort.
Dom má úžitkovú plochu 203 m² a priestrannú terasu (14 m²) orientovanú na juhozápad, ktorá zaručuje príjemné slnečné prostredie.
Pozemok s rozlohou 486 m² je upravený a oplotený, súčasťou je aj drevený prístrešok pre 2 autá, spevnené plochy, chodníky zo zámkovej dlažby a brána na diaľkové ovládanie. Zrážková voda zo strechy je zvedená do retenčnej nádrže, čo poskytuje ekologické riešenie pre zavlažovanie.
Cena dokončeného domu je 369 000 EUR.
Rodinný dom je napojený na všetky inžinierske siete s výnimkou plynu a je pripravený k okamžitému nasťahovaniu. Nachádza sa v tichej súkromnej štvrti s krásnymi výhľadmi na Prešov a výbornou občianskou vybavenosťou.
K nehnuteľnosti vedie súkromná prístupová cesta, ktorej spoluvlastníctvo je zahrnuté v cene.
Financovanie je možné prostredníctvom hypotekárneho úveru, ktorý Vám radi sprostredkujeme za najvýhodnejších podmienok na trhu.
Pre viac informácií nás kontaktujte na tel. čísle: 0903 433 337
 
									 
									 
									 
									 
									 
									 
									 
									 
									 
									 
									 
									 
									 
									 
									 
									 
									 
									