Používame cookies

Súbory cookie a ďalšie technológie sledovania používame na zlepšenie vášho zážitku z prehliadania našich webových stránok, na to, aby sme vám zobrazovali prispôsobený obsah a cielené reklamy, na analýzu návštevnosti našich webových stránok a na pochopenie toho, odkiaľ naši návštevníci prichádzajú. Viac info

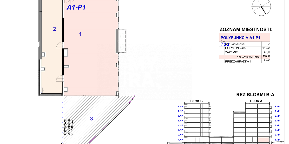
Nebytový priestor, 152 m2, novostavba, Ipelska ulica, sidlisko Terasa

Ponuka nie je aktuálna.
ULICA: Ipeľská
OKRES: Košice II
DRUH: Priestory
TYP: Predaj
PLOCHA: 152 m2
ID INZERÁTU: A1P1

POPIS NEHNUTEĽNOSTI

MYRA. Košice a JUDr. Miroslav Černý Vám ponúka na predaj nebytový priestor A1P1 v novostavbe IPELSKA na sídlisku Terasa v Košiciach pri Univerzitnej nemocnici L. Pasteura Košice. Bytový dom IPELSKA je synonymom moderného mestského bývania s vynikajúcou dostupnosťou občianskej vybavenosti, kde je vytvorený aj priestor pre Vaše podnikanie.

Nebytový priestor o výmere 152 m2 je na prízemí s priamym vstupom z chodníka. Priestor je na rohu bytového domu orientovaný na juh smerom na Ipeľskú ulicu, na západ a na sever. Steny orientované na chodník okolo budovy budú presklenné. V pôdoryse je znázornená aj časť priestoru, ktorá bude predelená priečkou a bude tvoriť budúce zázemie priestoru. Budúci vlastník si môže naprojektovať priestor na mieru.

V ponuke bytového domu sú aj iné nebytové priestory na prízemí, 2, 3, a 4 izbové byty na rôznych poschodiach.

K nebytovému priestoru a k bytu si môže záujemca kúpiť parkovacie miesto v spoločnej dvojpodlažnej podzemnej garáži a pivničnú kobku na prízemí bytového domu.

Konštrukcia stavby bytového domu bude z liateho betónu. Bytový komplex bude napojený na horúcovodnú prípojku. Byt bude vybavený stropným kúrením a prípravou na stropné chladenie, oknami s hliníkovými rámami, vstupnými bezpečnostnými a protipožiarnymi dverami. 

Investor si vyhradzuje právo na zmenu ceny.

Cena je uvedená bez DPH.

ZOBRAZIŤ VIAC

VLASTNOSTI NEHNUTEĽNOSTI

Status:
rezervované
Vlastníctvo:
korporácia
Úžitková plocha:
152 m2
Zastavaná plocha:
152 m2
Podlahová plocha:
110 m2
Skladová plocha:
42 m2
Stav:
Vo fáze projektovania
Počet izieb:
2

INFORMATÍVNA ÚVEROVÁ KALKULAČKA