Používame cookies

Súbory cookie a ďalšie technológie sledovania používame na zlepšenie vášho zážitku z prehliadania našich webových stránok, na to, aby sme vám zobrazovali prispôsobený obsah a cielené reklamy, na analýzu návštevnosti našich webových stránok a na pochopenie toho, odkiaľ naši návštevníci prichádzajú. Viac info

PREDAJ / dvoch novostavieb rodinných domov 226 m2 + pozemok 826 m2 | Veľký Šariš - Kanaš

Ponuka nie je aktuálna.
ULICA: Jesenná
OKRES: Prešov
DRUH: Domy
TYP: Predaj
PLOCHA: 206 m2

POPIS NEHNUTEĽNOSTI

Realitná kancelária MYRA. vám ponúka na predaj novostavby dvojpodlažných rodinných domov v príjemnom prostredí  mestskej časti Veľký Šariš - Kanaš pri Prešove.

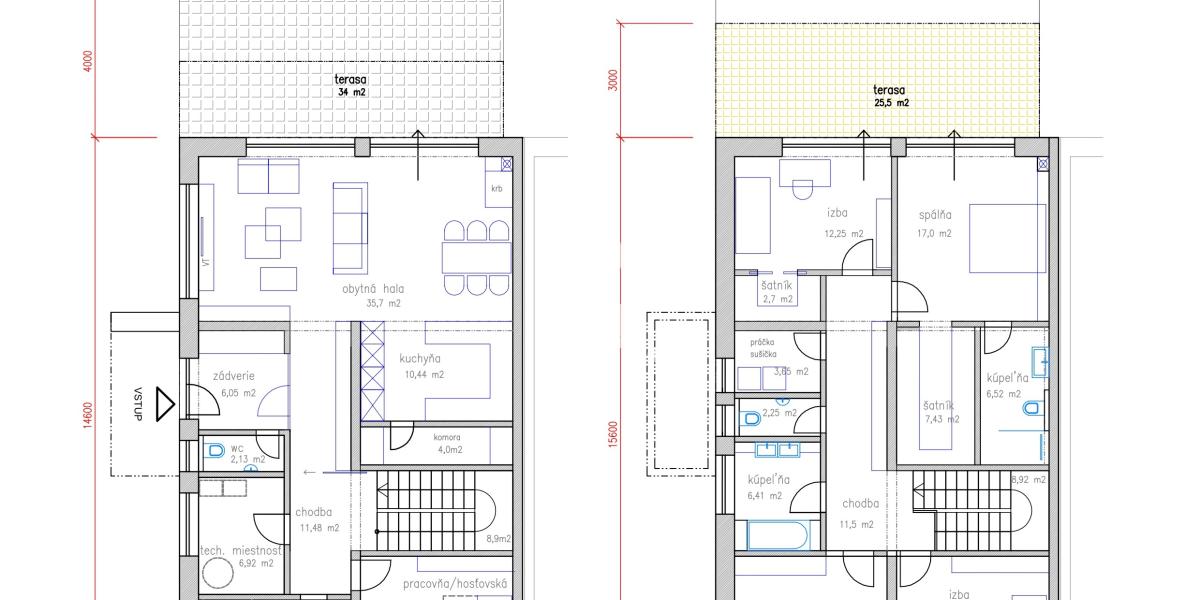
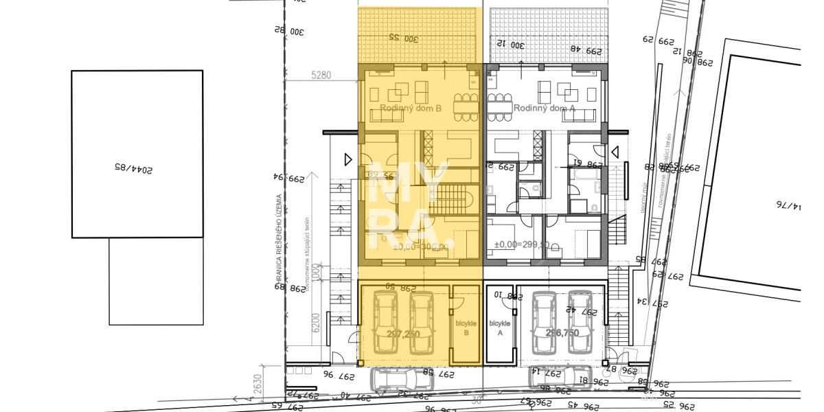
Ponúkame na predaj novostavby dvoch rodinných domov A a B v štádiu rozostavanosti (viď priložené fotky "marec 2024") aj s pozemkami.  Jedná sa o samostatné dvojpodlažné rodinné domy, dilatačne oddelené a so samostatnými vstupmi, každý o veľkosti užitkovej plochy cca. 220 m2 (priložený projekt pôdorysu prízemie - poschodie).

Dom A je navrhnutý ako dve samostatné byty, pričom byt na poschodí má samostatný vchod po vonkajšom schodisku. Veľkosť úžitkovej plochy horného bytu je 109 m2 (obytná plocha 66,70 m2). Spodný byt v dome A o veľkosti úžitkovej plochy 105 m2 (obytná plocha 62,70 m2) má aj vlastnú záhradu o veľkosti 851 m2. Dom A tvorí jeden harmonický celok a je teda vhodný aj pre multigeneračné bývanie. 

 Dom B je pôdorysne zrkadlovo identický s domom A avšak je riešený ako jeden dom so samostatným vstupom z prízemia (nemá vonkajšie schodisko na poschodie). Taktiež je súčasťou predajnej ceny domu B aj pozemok za domom o veľkosti cca. 826 m2. Veľkosť úžitkovej plochy domu je 206 m2 (obytná plocha 106,84 m2).

Domy A a B sú navzájom dilatačne oddelené, každý so samostatným obvodovým múrom a vlastníctvo k ním bude osobitne zapísané na liste vlastníctva.

Technické parametre domu A a B: 

Zastavaná plocha: 132,00 m2

Úžitková plocha interiéru: 1.NP+2.NP  206,04 m2

Plochy terás a lódžií: 91,65 m2

Odkladací priestor na bicykle a prístrešok pre 2 autá

Zastavaná plocha prístrešku: 56,60 m2 (je možné aj pozdĺžne státie pre návštevy) m

Pozemok k domu: 826,00 m2 (dom B) resp. 851,00 m2 (dom A)

Tieto rodinné domy boli naprojektované tak, aby ušetrili až 75 % energie vďaka modernému systému tepelného čerpadla zem – voda zn. Viessmann v kombinácií s dvoma 90m hlbokými vrtmi a technologicky nadčasovým podlahovým kúrením aj s chladením (natural cooling).  Tento systém zabezpečuje pohodlné a ekologické bývanie s minimálnymi tepelnými stratami. Systém aj vrty sú už zrealizované, a sú súčasťou predajnej ceny. 

Projekt zahŕňa aj predprípravu na osadenie 24 ks fotovoltických panelov VITOVOLT 300 (nerealizované, nie sú v cene holodomu) s možnosť nabíjania elektromobilu s baterkovým systémom. Vďaka jednoduchému princípu fungovania sú fotovoltické systémy Viessmann úplne spoľahlivé a ponúkajú ideálne riešenie pre vlastnú spotrebu a export do siete.

V dome A budú osadené bez rámové okná vyrobených z drevo-hliníka od firmy KUNAJ s trojitým sklom, vonkajšie hliníkové žalúzie s inteligentným ovládaním.

Domy sa predáva v stave holodom (viď fotodokumentáciu z marca 2024) s predprípravou na krb + saunu, možnosti nabíjania elektromobilu, terenných úprav, bez fotovoltaiky, terénnych úprav a tepelného čerpadla. 

CENY A VARIÁCIE PREDAJA: 

-  celý holodom A (206 m2) vrátane pozemku 826 m2:   230 000 €  (vrátane okien Kunaj)

- osobitne byt v dome A na prízemí so záhradou: 159 000 € (vrátane okien Kunaj)

- osobitne byt v dome A na poschodí (vstup z vonku po schodoch) bez záhrady: 99 000 € (vrátane okien Kunaj)

- celý holodom B (206 m2) vrátane pozemku 826 m2:   200 000 €  (bez okien)

- kúpa oboch holodomov A a B spolu 399 000 Eur. Za túto cenu získavate: 

- viac ako 1600 m2 stavebného pozemku v tichej mestskej časti Veľký Šariš - Kanaš 

- novostavby rodinných domov s celkovou úžitkovou plochou viac ako 412 m2 !!!

Ak vás táto ponuka predaja holodomov v Kanaši zaujala, neváhajte nás kontaktovať na tel. č. 0903 433 337.

ZOBRAZIŤ VIAC

VLASTNOSTI NEHNUTEĽNOSTI

Status:
aktívne
Vlastníctvo:
osobné
Plocha pozemku:
826 m2
Typ zeme:
mierne svahovitá
Teritórium:
Intravilán
Šírka pozemku:
40 m
Dĺžka pozemku:
100 m
Úžitková plocha:
206 m2
Zastavaná plocha:
132 m2
Podlahová plocha:
206 m2
Stav:
novostavba
Počet izieb:
3
Energetický certifikát:
A
Energetická náročnosť budovy:
Nulová energetická spotreba
Typ budovy:
tehla
Typ výbavy:
kompletne vybavený
Balkón:
áno
Terasa:
áno
Garáž:
áno
Pivnica:
áno
Sklad:
áno
Rok výstavby:
2024
Rok kolaudácie:
2024
Počet poschodí od prízemia vyššie:
1
Celková plocha:
206 m2
Terasa plocha:
26.3 m2