Používame cookies

Súbory cookie a ďalšie technológie sledovania používame na zlepšenie vášho zážitku z prehliadania našich webových stránok, na to, aby sme vám zobrazovali prispôsobený obsah a cielené reklamy, na analýzu návštevnosti našich webových stránok a na pochopenie toho, odkiaľ naši návštevníci prichádzajú. Viac info

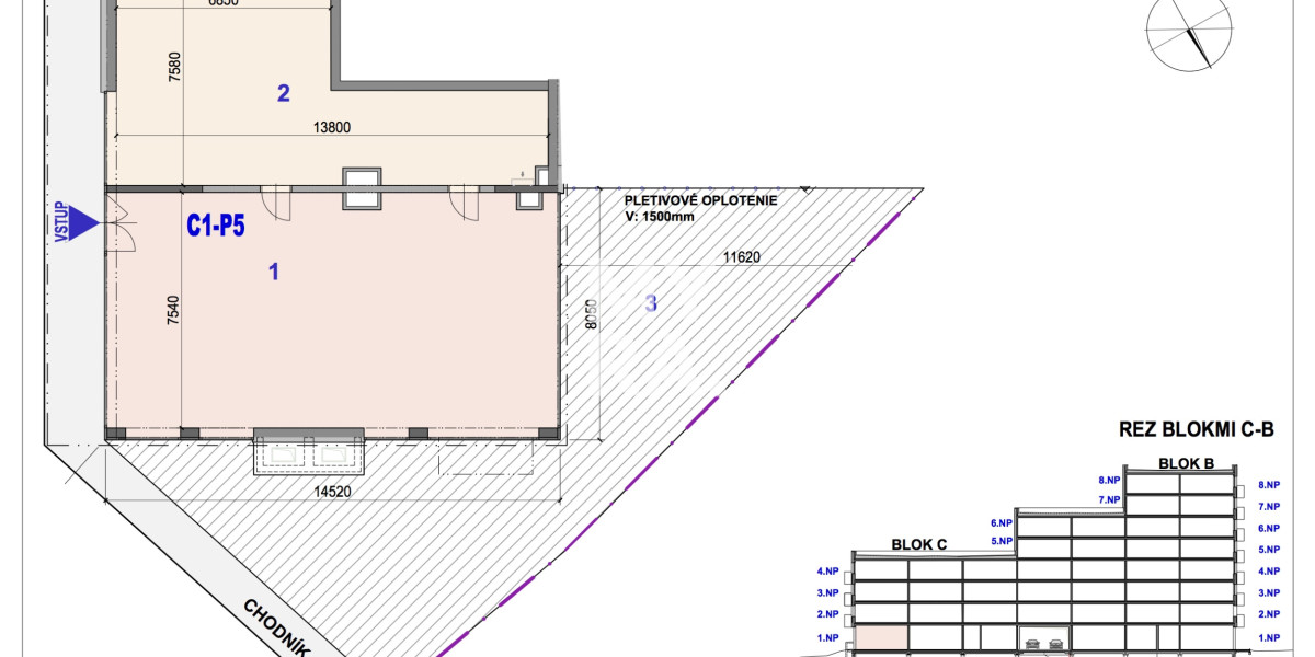
Obchodný priestor C1-P5 v Bytovom komplexe Ipeľská

555 000 €
bez DPH
ULICA: Ipeľská
OKRES: Košice II
DRUH: Priestory
TYP: Predaj
PLOCHA: 185 m2
ID INZERÁTU: C1P5

POPIS NEHNUTEĽNOSTI

MYRA. Košice a realitný maklér Roman Magdolen Vám ponúkajú samostatný obchodný priestor C1-P5 v pripravovanom Bytovom komplexe Ipeľská. Ide o holopriestor na 1. NP o celkovej výmere 185 m2. Obchodný priestor je stavebne rozdelený na dve miestnosti: na polyfukciu o výmere 110 m2 a zázemie o výmere 75 m2.

Obchodný priestor C1-P5 má vstup orientovaný na vnútornú komunikáciu a situovaný je v smere východ–západ. Cena za m2 je 3.000 eur bez DPH. Celková cena je 555.000 eur bez DPH.

K obchodnému priestoru je možnosť dokúpiť si pozemok vyznačený na pôdoryse, ktorý je vhodný predovšetkým pre kaviareň alebo raňajkáreň ako vonkajšia terasa pre návšetníkov.

Bytový komplex Ipeľská umiestnený v mestskej časti Košice-Západ bude mať v prvej etape 74 bytov s terasami a balkónmi, 118 parkovacích miest v podzemnej garáži a 71 pivníc. Projekt budú tvoriť dve samostatné budovy, vzájomne prepojené podzemným parkoviskom, ktoré budú mať 8 nadzemných podlaží a 2 podzemné podlažia. Súčasťou Bytového komplexu Ipeľská je aj 5 obchodných, nebytových priestorov na 1. nadzemnom podlaží.

Časový harmonogram výstavby:
• Právoplatné územné rozhodnutie už má investor k dispozícii od novembra 2024.
• Predpokladaný termín získania stavebného povolenia november 2025.
• Predpokladaný začiatok výstavby 1Q 2026.
• Výstavba 2,5 roka.
• Kolaudačné konanie a zápis bytov na list vlastníctva v roku 2029.
• Predpokladané odovzdávanie bytov klientom do konca roka 2029.

Technické špecifikácie obchodných priestorov:
– predpríprava na vykurovanie – prípojný bod;
– predpríprava na chladenie – prípojný bod;
– predpríprava na elektroinštaláciu – prípojný bod 24 A;
– predpríprava na prívod vody a odpad.

Vonkajšie steny nebytového priestoru budú sklenené, vnútorné z tehlového muriva.

Energetické siete:
Obe budovy Bytového komplexu Ipeľská budú vykurované napojením teplovodu na dodávateľa TEHO Košice. Plynová prípojka v objekte nebude realizovaná. Klimatizácia, prípadne rekuperácia vzduchu v obchodných priestoroch sa bude realizovať na náklady vlastníka priestorov.

ZOBRAZIŤ VIAC

VLASTNOSTI NEHNUTEĽNOSTI

Status:
aktívne
Vlastníctvo:
korporácia
Úžitková plocha:
185 m2
Skladová plocha:
75 m2
Stav:
Vo fáze projektovania
Počet izieb:
2
Typ výbavy:
holopriestor

LIFESTYLE INDEX

Inštitúcie

  • Zdravotné stredisko
    Zdravotné stredisko
    Zdravotné stredisko
  • Pošty
    Pošty
    Pošty
  • Školka
    Školka
    Školka
  • Banka
    Banka
    Banka
  • Škola
    Škola
    Škola
  • Miestny úrad
    Miestny úrad
    Miestny úrad
  • Nemocnica
    Nemocnica
    Nemocnica

Služby

  • Autobusy/Električky
    Autobusy Električky
    Autobusy/Električky
  • Nákupné centrum
    Nákupné centrum
    Nákupné centrum
  • Knihkupectvo
    Knihkupectvo
    Knihkupectvo
  • Trhovisko
    Trhovisko
    Trhovisko
  • Reštaurácia
    Reštaurácia
    Reštaurácia
  • Kaviarne
    Kaviarne
    Kaviarne

Kultúra

  • Knižnica
    Knižnica
    Knižnica
  • Divadlo/kino
    Divadlo kino
    Divadlo/kino

Relax

  • Fitness-posilňovne
    Fitness-posilňovne
    Fitness-posilňovne
  • Detské ihrisko
    Detské ihrisko
    Detské ihrisko
  • Parky/záhrady
    Parky záhrady
    Parky/záhrady
  • Venčoviská
    Venčoviská
    Venčoviská