Používame cookies

Súbory cookie a ďalšie technológie sledovania používame na zlepšenie vášho zážitku z prehliadania našich webových stránok, na to, aby sme vám zobrazovali prispôsobený obsah a cielené reklamy, na analýzu návštevnosti našich webových stránok a na pochopenie toho, odkiaľ naši návštevníci prichádzajú. Viac info

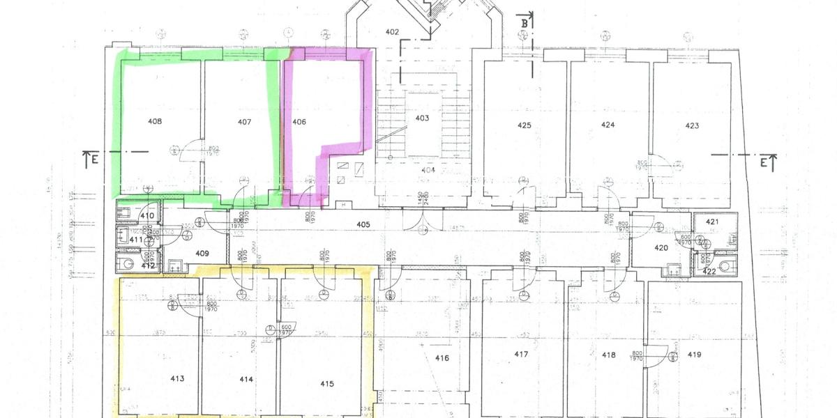
Prenájom 2 kancelárií v budove CONOX na Garbiarskej 5

11,70 €/m2/mesiac
bez DPH
ULICA: Garbiarska 1074/5
OKRES: Košice I
DRUH: Priestory
TYP: Prenájom
PLOCHA: 84.28 m2

POPIS NEHNUTEĽNOSTI

MYRA. Košice a realitný maklér Roman Magdolen Vám ponúkajú na prenájom 2 kancelárske priestory na 3. poschodí v budove CONOX Trade Centre na Garbiarskej 5 v Košiciach. Ide o dve prepojené kancelárie č. 407 a 408 s podlahovou plochou 28 m2 (14 + 14 m2). Kancelárske priestory sú klimatizované a sú na spoločnej chodbe, ktorá je od schodiska budovy oddelená vstupnými dverami s prístupovým kódom. Ich súčasťou je zdieľané zázemie – kuchynka a toaleta so samostatným WC. V budove CONOX Trade Centre je výťah. Prístup do budovy 24/7, elektronické zabezpečenie vstupov na poschodie.

Cena za prenájom zahŕňa dodávku elektriny, tepla, vodné, stočné, odvoz odpadu, bežnú údržbu, požiarnu ochranu, označenie v informačnom systéme budovy, poštovú schránku a servis klimatizačných jednotiek.

Možnosť pripojenia do internetu cez optický kábel (10 eur bez DPH/mesiac).

ZOBRAZIŤ VIAC

VLASTNOSTI NEHNUTEĽNOSTI

Status:
aktívne
Úžitková plocha:
84.28 m2
Stav:
úplne prerobený
Výťah:
áno
Počet poschodí od prízemia vyššie:
6
Celková plocha:
84.28 m2
Orientácia:
juh

LIFESTYLE INDEX

Inštitúcie

  • Pošty
    Pošty
    Pošty

Služby

  • Autobusy/Električky
    Autobusy Električky
    Autobusy/Električky
  • Reštaurácia
    Reštaurácia
    Reštaurácia
  • Kaviarne
    Kaviarne
    Kaviarne

Kultúra

  • Múzeum
    Múzeum
    Múzeum

Relax