Používame cookies

Súbory cookie a ďalšie technológie sledovania používame na zlepšenie vášho zážitku z prehliadania našich webových stránok, na to, aby sme vám zobrazovali prispôsobený obsah a cielené reklamy, na analýzu návštevnosti našich webových stránok a na pochopenie toho, odkiaľ naši návštevníci prichádzajú. Viac info

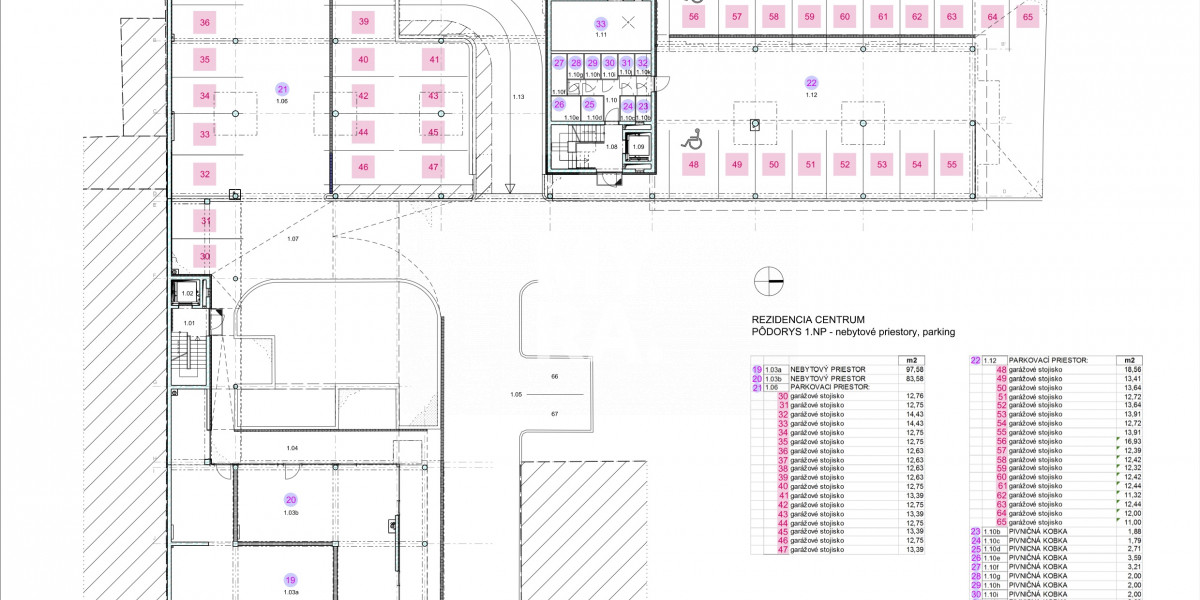
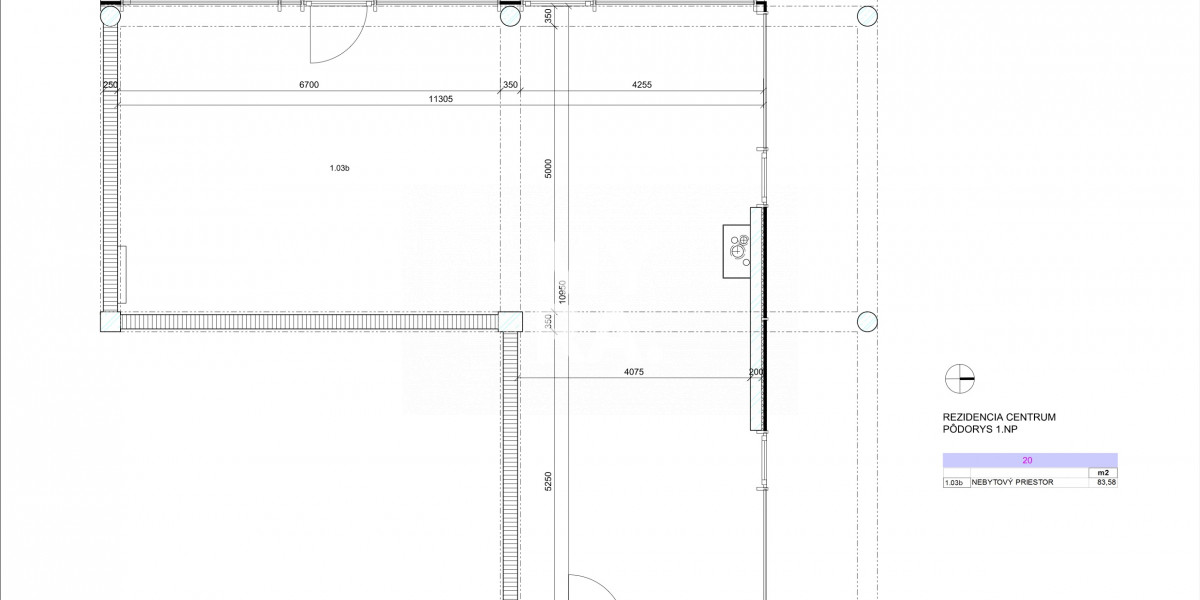
Nebytový priestor v Rezidencii Centrum č. 20

Ponuka nie je aktuálna.
ULICA: Baštová
OKRES: Košice I
DRUH: Priestory
TYP: Predaj
PLOCHA: 83.58 m2
ID INZERÁTU: NP1

POPIS NEHNUTEĽNOSTI

MYRA. Košice a realitný maklér Roman Magdolen Vám ponúkajú na predaj exkluzívny nebytový priestor č. 20 na prízemí v Rezidencii Centrum o ploche 83,58 m2. Nebytový priestor je možné spojiť so susediacim nebytovým priestorom č. 19 o výmere 97,58 m2. Ide o jediné dva nebytové priestory v tomto bytovom komplexe.

V cene nebytového priestoru je zahrnuté dokončenie podlahového kúrenia a elektroinštalácie.

K nebytovému priestoru je možné prikúpiť si vonkajšie parkovacie miesta č. 66 a 67, každé v cene 29.800 eur.

Rezidencia Centrum je postavená na Baštovej 4, hneď vedľa už stojaceho polyfunkčného objektu Baštová. Výstavba bola ukončená, kolaudácia prebehla v lete 2023 – byty a nebytové priestory sú zapísané na liste vlastníctva.

Všetky ceny sú uvedené s DPH.

ZOBRAZIŤ VIAC

VLASTNOSTI NEHNUTEĽNOSTI

Status:
rezervované
Úžitková plocha:
83.58 m2
Stav:
novostavba
Typ výbavy:
holopriestor
Rok kolaudácie:
2023
Počet poschodí od prízemia vyššie:
5
Pozícia:
Prízemie

LIFESTYLE INDEX

Inštitúcie

  • Zdravotné stredisko
    Zdravotné stredisko
    Zdravotné stredisko
  • Školka
    Školka
    Školka
  • Škola
    Škola
    Škola
  • Miestny úrad
    Miestny úrad
    Miestny úrad
  • Banka
    Banka
    Banka
  • Pošty
    Pošty
    Pošty

Služby

  • Autobusy/Električky
    Autobusy Električky
    Autobusy/Električky
  • Kúpalisko
    Kúpalisko
    Kúpalisko
  • Kaviarne
    Kaviarne
    Kaviarne
  • Reštaurácia
    Reštaurácia
    Reštaurácia
  • Trhovisko
    Trhovisko
    Trhovisko
  • Knihkupectvo
    Knihkupectvo
    Knihkupectvo
  • Nákupné centrum
    Nákupné centrum
    Nákupné centrum

Kultúra

  • Divadlo/kino
    Divadlo kino
    Divadlo/kino
  • Hudba/Performance/Tanec
    Hudba Performance Tanec
    Hudba/Performance/Tanec
  • Múzeum
    Múzeum
    Múzeum

Relax

  • Parkovisko
    Parkovisko
    Parkovisko

Video